A felhasználói élmény fokozása és a személyre szabott ajánlatok érdekében, valamint kényelmi, illetve statisztikai célból weboldalunk cookikat (sütiket) tárol a készülékén és webszervereken. Ezen adatok tárolásának módja a “Beállítások” feliratra kattintva módosíthatók. Ha hozzájárul a sütik használatához, kattintson az "Elfogadom" gombra. Részletesebb információ az Adatkezelési tájékoztató-ban található.

Menü

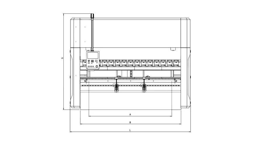
METALLKRAFT GBP PRO 31175 CNC vezérelt 4 tengelyes lemezhajlító gép

Ipari felhasználásra készült, magas minőségű, grafikus CNC vezérlésű lemezhajlító gég 175 tonnás kivitelben.

Kérje árajánlatunkat! 

Gyártó:
Szállítási díj: 31.750 Ft
Elérhetőség: Egyedi szállítás
Várható szállítás: 2025. október 28.
Szállítási információk - expressz szállítás

Leírás

METALLKRAFT GBP PRO 31175 CNC vezérelt 4 tengelyes lemezhajlító gép

Feszültségmentesített, masszív, hegesztett acél vázszerkezet.

Érintőképernyős vezérlésű DELEM DA 58T 2D jól áttekinthető színes felülettel és hajlítási sorrend kiszámítással.

A motor hajtású Y1-, Y2-, X, R-tengely és a motoros asztalelőfeszítés CNC-vezérelt.

A CNC vezérlelt, motorizált X tengely lineáris vezetőkön mozog golyósorsós hajtással.

Motoros R tengely, mely lineáris vezetőkön fut fogasléces hajtással.

A vázszerkezettől függetlenített elmozdulásmérő rendszer az oldalsó állványon, kompenzálva a hajlítás során fellépő deformációt.

Biztonsági vonalfény FIESSLER Akas II és FMSC CNC vezérlésű motoros asztal előfeszítés (domborítás, bombírozás).

Az ütközők (Z tengely) kézi, oldalirányú beállítása lineáris vezetőkön történik.

2db lemeztartó kar T-hornyokkal és billenőhajtókarral, hosszirányban lineáris vezetőkön fut.

Gyors rögzítésű felső szerszám (oldalsó eltávolítás).

Szabványos felső szerszámkészlet 135 mm - 85°

Standard alsó szerszám Multi-V 85° - 16/22/35/50 mm.

Beépített, biztonsági végálláskapcsolók az oldalsó és hátsó burkolati ajtókon, elemeken.

Kezelő panel a jobb oldalon elhelyezve.

Siemens és a Mitsubishi elektromos alkatrészek.

Bosch Rexroth és Hydac hidraulikus alkatrészekkel szerelve.

Könnyen használható, lábbal vezérelhető mobil vészleállító.

 

Alap vezérlés Delem DA 58T:

Automatikusan kiszámítja a hajlítási sorrendet, nyomóerőt, előfeszítést, hátsóütköző pozícióját túlméretezéskor, a szerszám biztonsági zónáját, hajlítási toleranciát, előfeszítést, a nem hajlított anyag hosszszámítását, sugarát stb.

Y1, Y2, X és R tengelyek, valamint a motoros asztalelőfeszítés

Figyelmeztetés ütközésre

USB-csatlakozó interface

15“ érintőképernyős kijelző

Grafikus termék és szerszámkönyvtár

1 licenccel az 58 TL szoftver

 

Opcionális tartozékok:

Vezérlés (CybTouch 15, VisiTouch 19, MX or Delem DA 66T, Delem DA 69T)

X tengely meghosszabbítása 1000 mm

CNC vezérlésű, motoros Z1 / Z2 tengely

CNC vezérlésű, motorvezérelt Delta-X tengely

CNC 6 tengely (torony változat)

Speciális vetítési méretek

Hidraulikus felső szerszám és szerszámbilincsek WILA PRO - NSCL-I-HC / UPB

További ütközők és az első tartókarok

Motoros emelőkar (hajlítási segéd)

A második lábpedál két ember működtetéséhez

Kézi vagy automatikus központi kenési rendszer

Légkondicionálás a vezérlőszekrényhez

Olaj hűtő

Olaj melegítő

Speciális szerszámok

Különleges méretek kérésre

Paraméterek

Cikkszám 4253117
Nyomóerő 175 t
Hajlítási szélesség 3100 mm
Oszlopok közötti távolság 2550 mm
Gyorsjárat 160 mm/sec
Hajlítási sebesség 10 mm/sec
Motorteljesítmény 18,5 kW / 400V
Lökethossz 270 mm
Nyitási magasság 550 mm
Torok mélység 450 mm
X-tengely lökethossz 650 mm
X-tengely sebessége 500 mm/sec
Asztal magasság 920 mm
Asztal szélesség 120 mm
Olajtartály kapacitása 200 l
Méret (H x Sz x M) 4350 x 2250 x 2920 mm
Tömeg 10000 kg
Elektromos csatlakozás 400 V / 3 Ph / AC / 50/60 Hz
Támasztó kar 2 db
R-tengelyirány 200 mm
R-tengely sebessége 350 mm/sec

Hasonló termékek

Rendelhető
131.212 Ft 118.566 Ft
-10%
Rendelhető
782.410 Ft 637.480 Ft
-19%
Rendelhető
2.350.530 Ft
Rendelhető
1.062.598 Ft
Rendelhető
452.910 Ft 370.815 Ft
-18%
Rendelhető
2.202.417 Ft 1.850.924 Ft
-16%
Rendelhető
857.600 Ft 741.987 Ft
-13%
Rendelhető
102.650 Ft 82.527 Ft
-20%
Egyedi szállítás
5.143.320 Ft
Rendelhető
1.510.422 Ft 1.228.700 Ft
-19%
Rendelhető
1.953.315 Ft
Rendelhető
2.597.409 Ft
Rendelhető
1.412.803 Ft 1.159.100 Ft
-18%